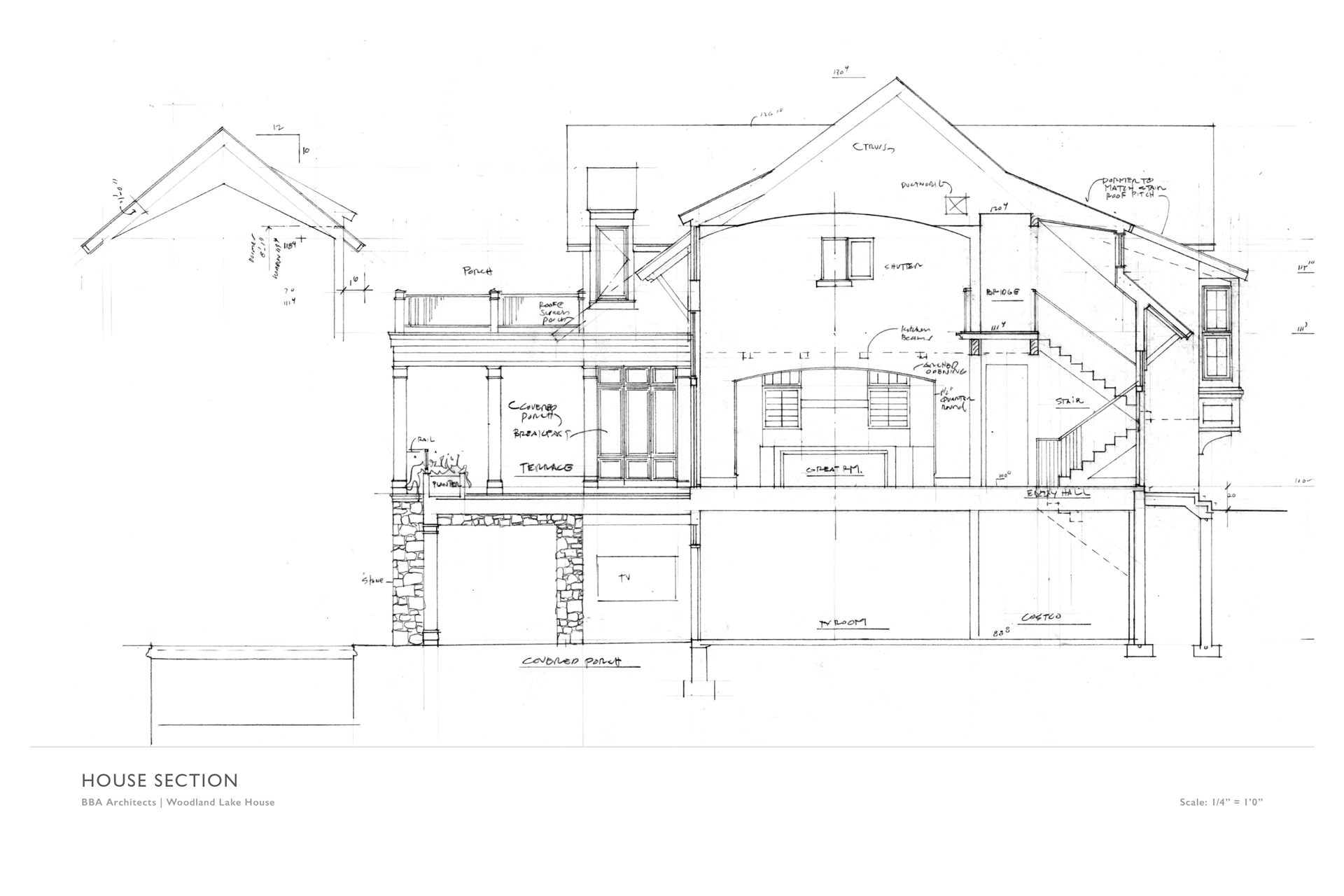
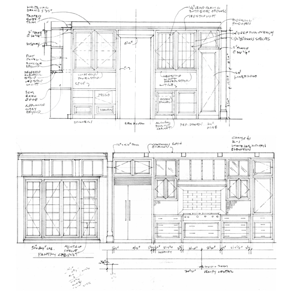
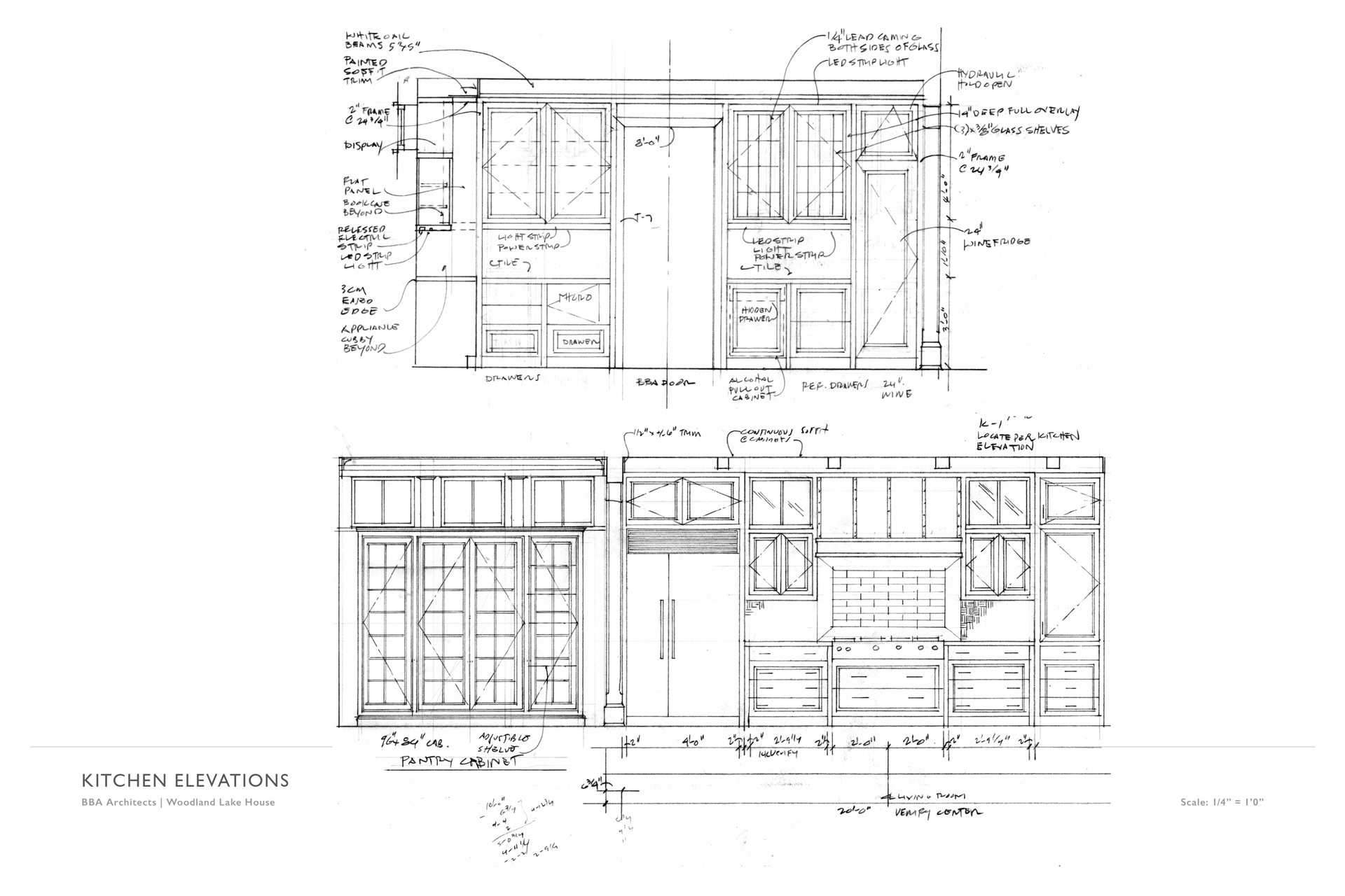
Woodland Lake House

After traversing a winding gravel drive to a deeply wooded site, an open vista reveals the Woodland Lake House. Traditional exterior materials and details create an inviting timeless appeal, while inside a dramatic two-story great room with a gentle barrel-vaulted ceiling features a wall of generous windows overlooking lakefront views. An exterior stair descends to the pool deck, covered patio and walk-out lower level, while the lawn continues to slope downward toward the water and the entertaining space above the boathouse.

SIZE:

6,800 sf

OVERVIEW:

A lakeside home offering generous indoor and outdoor gathering spaces to enjoy dramatic waterfront views.

PHOTOGRAPHY:

Heather Talbert

INTERIOR DESIGN:

Elizabeth Taich Design