The Queen in Color

This remarkably preserved 1895 Queen Anne single-family home in Chicago’s North Side is being renovated to honor its historic charm and unique details. A few key aspects of the repairs include: preserving interior woodwork detailing, and replacing weathered siding with newly milled pieces that carefully match the original turn-of-the-century profiles. Additionally, the existing windows are being carefully restored and retrofitted with insulated glazing to ensure that they can be enjoyed for another century.

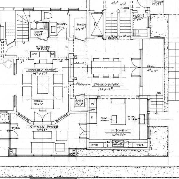
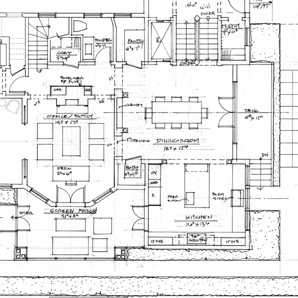
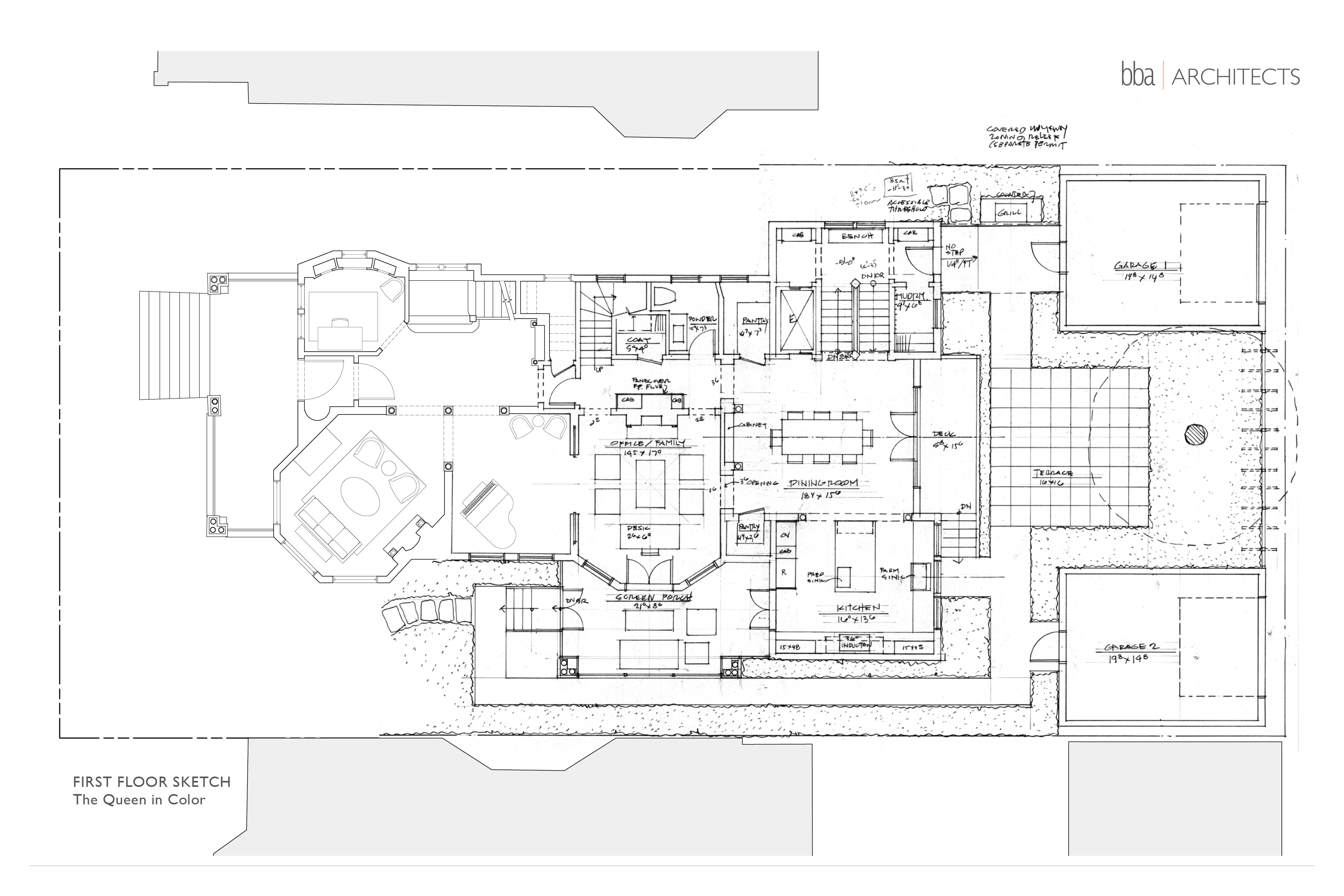
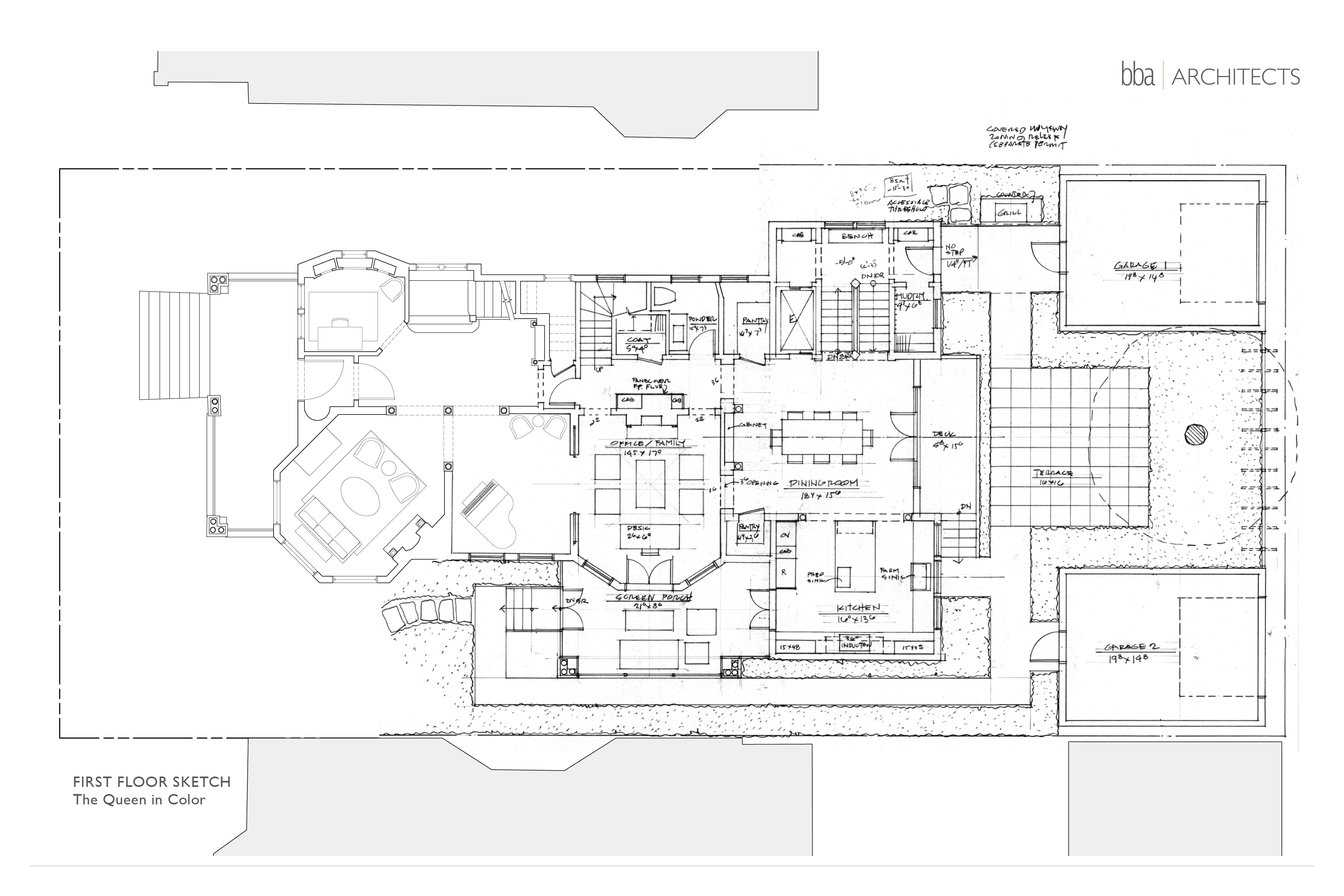
The proposed design maintains the historic appearance and expands the current home by designing a new two-story rear addition with modern amenities, including a spacious kitchen (complete with custom cabinetry), an expansive primary suite, and a four-stop elevator. The whole home is being retrofitted for the 21st century by re-insulating the framework and features all-new electric appliances and mechanical systems throughout. 

The owners’ bold vision is exemplified in the design’s Victorian-inspired color palette, visual connections to the outdoor landscaping at the rear yard/screen porch addition, and most prominently, in their commitment to historic preservation. The home is now officially listed on the National Register of Historic Places and is eligible for a Property Tax Assessment Freeze

OVERVIEW:

This remarkably preserved 1895 Queen Anne single-family home on a spacious lot will be restored to honor its historic charm and unique details. 

BBA TEAM:

Gary Beyerl, Jack Callahan, Erin Morgani

BUILDER:

Progress Builders Inc. 

INTERIOR DESIGNER:

Allison Henry Interior Design